City House

Please rotate your device to view the gallery better.

Back to Projects Page

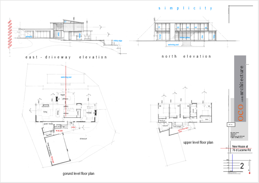
Plan

Planning is by far the most important first step in any project. We consider the access to the site, vehicular and pedestrian, and ensure this is located correctly...

Design

Design is everything. Without a good design that responds to your brief and that is aesthetically/ proportionally correct, then regardless of how much time, money and effort that...

Build

At OCO we can help guide you to the best consultants specific to your particular project, from surveyors to engineers, draughts people and planners as required. We offer...